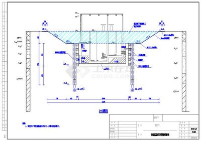
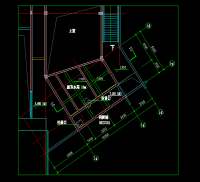
截污管网建设工程岩土工程设计图纸的重要性与关键要素
产品大全 Product
联系我们 Contact

电话:1850318**

地址:上海市宝山区高逸路112-118号2、3、4、5、6、7幢

邮箱:rd97u**[email protected]

网址:www.zsobw.com

企业简介 Introduction
上海邦微清建筑设计有限公司成立于2024年07月29日,注册地位于上海市宝山区高逸路112-118号2、3、4、5、6、7幢,法定代表人为徐思楠。经营范围包括许可项目:建设工程设计。(依法须经批准的项目,经相关部门批准后方可开展经营活动,具体经营项目以相关部门批准文件或许可证件为准)一般项目:园林绿化工程施工;专业设计服务;规划设计管理;建筑装饰材料销售。(除依法须经批准的项目外,凭营业执照依法自主开展经营活动)
企业信息 Information
企业信息 经营范围

公司名称:上海邦微清建筑设计有限公司

法人代表:徐思楠

注册地址:上海市宝山区高逸路112-118号2、3、4、5、6、7幢

所属行业:批发业

更多行业:批发业,批发和零售业

经营范围:许可项目:建设工程设计。(依法须经批准的项目,经相关部门批准后方可开展经营活动,具体经营项目以相关部门批准文件或许可证件为准)一般项目:园林绿化工程施工;专业设计服务;规划设计管理;建筑装饰材料销售。(除依法须经批准的项目外,凭营业执照依法自主开展经营活动)

访客留言
*姓名
*电话
微信
QQ
留言内容